Prof. Achim Pfeiffer
EKBB - ENTWERFEN UND KONSTRUIEREN. BAUEN IM BESTAND
Intro
Der Umgang mit dem bereits Gebauten unterscheidet sich von der Entwicklung eines grundsätzlich neuen Gebäudes fundamental. Daher bedarf er einer eigenen Lehre.
Der Umgang mit dem bereits Gebauten stellt in der Baugeschichte den Regelfall dar. Der Neubau war immer die Ausnahme. Bis die Industrialisierung und die damit verbundene Veränderung der Produktionsbedingungen das geändert hat. Wir verloren die Kultur des Weiterbauens, der Reparatur, der Akzeptanz des Alterns aus den Augen, wir feierten allein das Neuwertige.
In der Lehre zum Bauen im Bestand geht es daher zunächst um eine Änderung der Wahrnehmung unserer gebauten Umwelt. Darauf folgt die Schulung in den für den Bestand spezifischen konstruktiven und entwurflichen Strategien.
Ziel der Lehre ist die Vermittlung von Kenntnissen zum Umgang mit dem bereits Gebauten, die ihn für die zukünftige Berufstätigkeit unserer Studierenden wieder zum Normalfall werden lässt.
Lehre
WS 25/26

In diesem Semester arbeiten wir in Duisburg-Hochfeld. Ein leerstehendes Bürogebäude, das seinen Nachbarn verloren hat, wir zum Auftakt für ein neues Ausbildungszentrum für Berufe im Bauhandwerk.
WS 24/25

In diesem Semester beschäftigten wir uns mit dem Gebäude 27.1, einem ehemaligen Verwaltungsgebäude, das mal ein Kesselhaus war. Es steht auf einem stillgelegten Werksgelände in Wuppertal und wartet nun auf seine dritte Nutzungsphase.
WS 23/24

Das Evangelische Kreiskirchenamt in Gelsenkirchen, Pastoratstr. 8-10, wurde im Rahmen des Wiederaufbaus der Gelsenkirchener Innenstadt in den späten 1950er Jahren errichtet. Seitdem wurde es baulich kaum verändert. Die Idee des “wundervollhauses” spiegelt die aktuellen Veränderungen in der Kirche wieder. Wie kann das alte Haus den neuen Inhalten gerecht werden?


SS 23

Das Gebäude in der Krefelder Lewerentzstr. hatte noch nicht einmal eine eigene Hausnummer. Es wurde 1959 als Erweiterung der Verwaltungsräume einer Samtweberei in der Krefelder Südstadt gebaut. Das Gebäude soll nach Aufgabe der Verwaltungsnutzung zu einem Stadtteilzentrum werden. Dafür braucht es zunächst mal einen eigenen Eingang, die Hausnummer 104 und dann?

Der Abschluss der Baukonstruktionslehre an der HS Bochum erfolgt im 7. Semester mit dem Konstruktiven Projekt, in dem die Studierenden ein selbst entworfenes Projekt in Anlehnung an die Leistungsphasen 2 bis 5 bearbeiten. Ziel der Lehre ist das Anwenden des im bisherigen Studienverlauf erworbenen Wissens in einem integralen Planungsprozess. Basierend auf der eigenen Entwurfsplanung wird eine baukonstruktive Durcharbeitung bis zum Ausführungsdetail erstellt. Die Fachdisziplinen Tragwerk, Bauphysik und Gebäudetechnik sind in das Konstruktive Projekt eingebunden, so dass die Integration der verschiedenen, den Entwurf beeinflussenden Faktoren gezielt erarbeitet werden kann.
SS 2026
Die Einführungsveranstaltung zum Sommersemester 2026 mit Erläuterung der Aufgabenstellung und Vorstellung des Semesterverlaufsplans findet am Freitag, den 10.04.2026 um 12.30h im H0.01 im H-Gebäude statt.
WS 25/26
Informationen zur Prüfung im Wintersemester 2025/26
Geprüft werden können nur die Studierenden, die sich zur Prüfung beim Prüfungsamt angemeldet haben (Bitte überprüfen Sie Ihren Status eigenständig). Bei Problemen hierzu müssen sie sich direkt an das Prüfungsamt wenden. Wir als Prüfer haben darauf keinen Einfluss. (Derzeit sind zwei Anmeldemöglichkeiten hinterlegt, es handelt sich dabei aber um dieselbe Prüfung. Es ist also egal, welche der beiden Anmeldemöglichkeiten sie nutzen. Die Aufteilung auf die beiden Prüfungstage erfolgt erst nach Abschluss der Anmeldungen.)
Die Möglichkeit einer Anmeldung "unter Vorbehalt" bei gleichzeitiger Prüfung der fehlenden Vorleistungen im identischen Prüfungszeitraum ist NICHT möglich.
Des Weiteren ist ein erfolgreiches Testat Voraussetzung für die Prüfung.
ABLAUF
Die Prüfung findet – soweit beide angemeldet sind – in den jeweiligen Bearbeitungsgruppen statt. Sollte nur ein Gruppenmitglied angemeldet sein, so ist auch nur dieses zur Prüfung zugelassen. Durch die Gruppenarbeit wird grundsätzlich davon ausgegangen, dass beide Gruppenpartner zu allen Themen entsprechend Auskunft geben können.
Die Prüfungstermine sind am Montag, den 23.03.2026 und am Freitag, den 27.03.2026. Die Prüfung findet im H-Gebäude statt (zur Raumzuweisung bitte Aushänge am Prüfungstag beachten). Alle Unterlagen der Bearbeitung sind in gedruckter Form als Präsentationspläne auf den Tischen auszulegen. (Bitte erscheinen sie mind. 15 Minuten VOR der Prüfungszeit)
Die exakten Prüfungszeiten finden sie als Download kurz vor den Prüfungstagen auf dieser Seite. Die Zuordnung zu einem der beiden Prüfungstagen erfolgt erst nach Abschluss der Anmeldefrist.
Sämtliche Unterlagen sind vor der Prüfung als ein Sammel-PDF auf SCIEBO hochzuladen. (max. 100 MB) Abzugeben sind alle Leistungen, auch der Vertiefungsbereiche gemäß der Hinweise aus der Einführung bzw. den jeweiligen Hinweisen der Betreuer der Vertiefungsbereiche. Die Unterlagen sind geordnet nach den Themen als eine Sammel-PDF-Datei abzugeben.
Benennung: "NAME-VORNAME-MATRIKELNUMMER"
Bei Prüfungsanmeldung einer Bearbeitungsgruppe mit: "NAME1-VORNAME1-MATRIKELNUMMER1_NAME2-VORNAME2-MATRIKELNUMMER2"
Abgabetermin spätestens: Sonntag 22.03.2026, 23:59 Uhr.
Sciebo-Link zum Hochladen der Abgabe: hs-bochum.sciebo.de/s/TkEYjmDxSbfbbNt
Wintersemester 2025/26
Das Wahlfach wird auch im Wintersemester 2025/26 angeboten. Erstes Treffen für die zugeteilten Studierenden am Mittwoch, 01.10.2025, 15h im H2.16.
WS 23/24
Unser erstes Semester im Umbaulabor! Nach einer "Grundausbildung" auf dem Campus begann die Arbeit am realen Objekt, der Bergmannstr. 23 in Gelsenkirchen-Ückendorf. Untersuchungen zur bestehenden Baukonstruktion, Erkenntnsse über ihr Veränderungspotential und Studien zu neuen Wohnformen in alten Mauern waren Inhalt der Semesterarbeit.










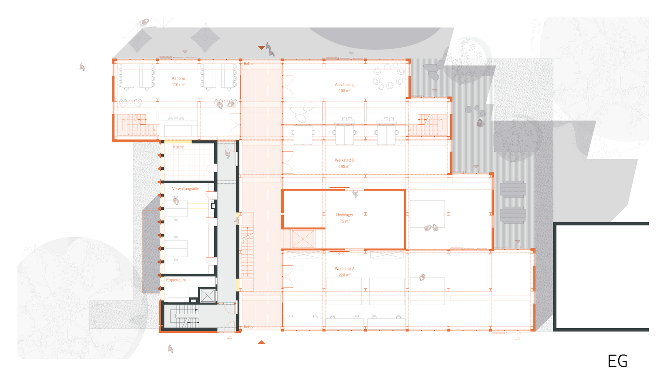
WS 25/26

In diesem Semester arbeiten wir in Duisburg-Hochfeld. Ein leerstehendes Bürogebäude, das seinen Nachbarn verloren hat, wir zum Auftakt für ein neues Ausbildungszentrum für Berufe im Bauhandwerk.




SS 25

Ein Warenhaus aus der Zeit des Wiederaufbaus wird nicht mehr gebraucht. Kein Einzelfall, der Einzelhandel wandelt sich. Wir entwerfen die Umwandlung des Hauses in ein innerstädtisches Wohnhaus.
SS 24

In diesem Semester planten wir in einem ehemaligen Maschinenhaus der Kokerei Hansa in Dortmund die Einrichtung einer hip hop academy.
Industriebau, ziemlich runtergerockt, trifft auf freie Kulturszene. Bauen im Bestand.
WS 23/24

Terminänderung! Ortstermin am 12.10.2023 um 10h am Objekt in Gelsenkirchen, Pastoratstr. 8-10. Alle weiteren Infos im moodle Kurs.
SS 23

Alle weiteren Informationen im moodle- Kurs.
WS 22/23

Henrichsforum, Hattingen
Das Gebäude ist eines der letzten Relikte der ehemaligen Henrichshütte in Hattingen. Das Projekt „Henrichsforum“ beschreibt eine öffentliche Nutzung durch die städtischen Institutionen Volkshochschule und Bibliothek. Gemeinsam wollen sie ein neues Angebot an die Bevölkerung machen, im Sinne eines offenen Hauses für alle.
SS 25 Bibliothek am Schauspielhaus
Das Thema des Erstentwurfs in diesem Semester ist eine Bibliothek auf dem Tana-Schanzara-Platz am Schauspielhaus Bochum. Die Idee der Bibliotheken ändert sich in Anbetracht der Digitalisierung. Welches Haus wird heute und morgen dafür gebraucht?
Erstes Treffen am 03.04.2025 um 10h vor dem Haus der Geschichte des Ruhrgebiets, Clemensstr. 17, Bochum.
Sommersemester 24: Kita Imbusch

Im Sommersemester 2024 betreuten wir gemeinsam mit der Professur Katharina Feldhusen den Erstentwurf. Aufgabe war der Neubau einer Kindertagesstätte auf dem Imbuschplatz in der Bochumer Innenstadt.



SS 23

Zu entwerfen ist eine coffeebox auf dem Platz vor der bluebox. Sie wird im Sommer aufgestellt und im Winter abgebaut und eingelagert. Im Sommer gibt es Cappuccino und Latte Macchiato. Architektonisches Vorbild ist die bluebox. Die bluebox ist ein Stahlbau, die coffeebox ein Holzbau.Eine konstruktive und gestalterische Verwandtschaft ist zu entwerfen. Die coffeebox ist das kleine Pendant zur bluebox.
Die Aufgabe finden sie im Moodle Kurs.
WS 22/23

Ein ca. 25m² großer Raum als Rückzugsort zum Lesen, Schlafen, Entwerfen…. Wetterfest aber unbeheizt, für ein bis zwei Personen.
Die Modelle werden an einem Bindfaden in 1.50m Höhe (Augenhöhe) von der Dachkonstruktion der bluebox abgehängt. Das Hängende Haus wird zum hängenden Modell. Bitte bauen sie also einen funktionierenden Aufhängepunkt ein. Ein Hängetest zuhause wird empfohlen!
summer school 2024 Umbaulabor

In der ersten Septemberwoche 2024 fand die erste Summerschool im Umbaulabor Gelsenkirchen statt. 27 Studierende, davon 4 von der HS BO, beschäftigten sich in Theorie und vor allem Praxis mit den Themen Baukonstruktion, Freiraum und Baugeschichte anhand des alten Hauses in der Bergmannstr. 23. Fachliche Begleitung erfolgte durch zahlreiche Fachleute aus der Immobilienwirtschaft, dem Handwerk, der Gebäudetechnik, der Stadtentwicklung u.a.. Das Team von der Baukultur NRW plant für das nächste Jahr bereits eine zweite Auflage. Unbedingt vormerken!













Exkursionen

Vom 11.05 bis zum 16.05.2026 besuchen wir unsere belgischen Nachbarn.
Die Exkursion ist ausgebucht.

Im Rahmen unserer Exkursionsreihe zu unseren europäischen Nachbarn besuchten wir in diesem Jahr Kroatien und Slowenien. Schwerpunkt des Programms war die Stadt Zagreb, ergänzt um eine Tagesreise nach Ljubljana. Die Reise fand vom 25.05. bis zum 30.05.2025 statt.







In der Hafenstadt am Mittelmeer entdeckten wir die Moderne von Fernand Pouillon und seinen Schülern, von André Devinbis René Egger. Le Corbusiers Unité als Gegenmodell, dazu die aktuellen Transformationsprozesse im Hafengebiet. Und Saint Victor, Weiterbauen im Bestand seit 1800 Jahren...
Die Reise fand vom 23.06. bis zum 28.06.2024 statt.










Als Auftakt einer Exkursionsreihe in unsere europäischen Nachbarländer besuchten wir in diesem Jahr Polen. Wahrscheinlich ist Polen für die meisten unser unbekanntester Nachbar, und wir freuten uns deswegen über viele Neuentdeckungen. Das Besuchsprogramm umfasste Breslau und Kattowitz. Die Reise fand vom 15.05. bis zum 20.05.2023 statt.






Information

- 1969 geboren in Kaufbeuren im Allgäu, aufgewachsen im Ruhrgebiet
- 1990-97 Architekturstudium an der RWTH Aachen, Diplom bei Prof. Mirko Baum
- 1997-2020 Architekt im Architekturbüro Heinrich Böll, Essen
- 2010 Lehrauftrag Fachhochschule Düsseldorf, Peter Behrens School of Architecture
- 2014-15 Vertretungsprofessur „Baukonstruktion und Entwerfen“, Fachhochschule Dortmund
- 2014-19 Lehraufträge Fachhochschule Dortmund, Wahlpflichtfach "Bauen im Bestand"
- 2019-22 Vertretungsprofessur „Baukonstruktion und Bauen Im Bestand“, Fachhochschule Dortmund
- Geschäftsführender Gesellschafter Böll Architekten GmbH, Essen
- Mitglied im Gestaltungsbeirat der Stadt Dortmund
- Mitglied im Beirat des “Umbaulabor” der Initiative Baukultur NRW
Dipl.-Ing. Andrea Stachelhaus

Wissenschaftliche Mitarbeiterin
andrea.stachelhaus@hs-bochum.de
Raum H2.12
Dipl.-Ing. Dirk Godau Architekt BDA

dirk.godau@hs-bochum.de
- 1997 Reiser & Partner Architekten BDA
- 2005 Gesellschafter und Prokurist bei Reiser & Partner Architekten BDA
- 2006 Berufung in den BDA
- 2007 Gesellschafter Geschäftsführer bei Reiser & Partner Architekten BDA
- 2009 Vorstandsmitglied BDA Bochum, Hattingen, Herne und Witten
- 2011 bis 2017 – Vorsitzender BDA Bochum, Hattingen, Herne und Witten
- 2011 Vorstandsmitglied BDA Ruhrgebiet
- 2012 Berufung in den Konvent der Bundesstiftung Baukultur
- 2014 bis heute – Preisrichtertätigkeiten
- 2017 bis heute – Vorstandsmitglied BDA Bochum, Hattingen, Herne und Witten
- 2019 Mitglied des Beirates für Stadtgestaltung und Baukultur der Stadt Lünen
- 2023 Mitglied des Beirates für Stadtgestaltung der Stadt Arnsberg
Dipl.-Ing. Jo Meyer

jo.meyer@hs-bochum.de
Lebt und arbeitet in Düsseldorf.
Studium an der Fachhochschule Aachen und der Kunstakademie Düsseldorf.
Realisiert eigene Projekte seit 1998 mit dem Schwerpunkt Umbauten, von ganz klein bis sehr groß, gerne aber auch mal ein Neubau zwischendurch. Außerdem noch pädagogische Projekte mit Kindern und Jugendlichen für die Architektenkammer NRW und die Kunstsammlung NRW.
Mitglied der Architektengruppe rheinflügel bis 2006, mittlerweile angestellt bei Lindner Architekten, Düsseldorf.
Könnte sich ein Leben, ohne zu bauen, vorstellen und würde dann doch die ganze Zeit darüber nachdenken, warum etwas so aussieht wie es aussieht.